Report on the present state of Culra Bothy
for the MBA and the Ben Alder Estate, March, 2013.

Photo 1
– Culra Bothy, March, 2013
1. Progress on the reduction in the fire hazard
in the bothy
· As noted in previous reports by us to the MBA and to the Ben Alder Estate, fire safety in the Bothy has been one of our major concerns since we took over as MO’s for the Bothy. One of our primary worries has been the presence of loose furniture in all of the rooms in the Bothy. This loose furniture could prevent an escape from the individual rooms, particularly in the dark, and this was considered a high risk to anyone needing to escape from the building in time of a fire or any other emergency. This risk has now been greatly reduced by installing fixed tables, shelving, and rucksack/clothing hooks in all 3 rooms of the building with fixed seating around the tables. At the present time there is no free-standing furniture apart from one small bench in the main large Common Room, and this has been left so that bothy users can sit in front of the stove. It is not felt that this bench presents a serious impediment to a quick escape from this room. The new tables are large enough to cook on in safety (see Photo 2 below) without the risk that cookers are knocked over or fall off the edge of the table. This aspect of the fire safety alterations is therefore now complete. The heating stove in the Common Room, however, still represents a very high fire risk and this will be discussed in a separate section on the stove below.
· As part of the reduction in the
fire hazard at the bothy, the open fireplace in the Small Dormitory has been
sealed and boarded-up. This open
fireplace leaked smoke through the chimney-stack into the attic space and
through the top of the chimney to the outside.
It also produced sparks and embers inside the small dorm. The space in front of the fireplace has been
utilised to provide a table with seating on the sleeping platforms at either
end (see Photo 2 on the next page).
2. General improvements to the bothy
· The new large fixed tables
mentioned above, as well as lowering the fire risk, have also greatly increased
the amenity of the bothy, making it much easier for the large numbers of Bothy
users to prepare food, cook, and eat on the new tables.
· The sleeping accommodation has
been greatly improved and increased, and is now capable both of more flexible
use and of accommodating the increasingly larger numbers using the bothy.
· The doors to both porches are now
capable of being secured and opened from both the inside and the outside of the
doors with sliding bolts.
3. The continued fire
risk to Culra Bothy presented by the Common Room stove.
The stove in the Common Room has a
number of unfortunate problems which we again tested during a visit to the
bothy on 9/10/11 March, 2013:

Photo 2 – The interior of the small dorm showing the blocked-up fireplace, the new fixed table, and the sleeping platform at the right which we have raised to the same level as the platform at the rear.
The stove is totally unsuitable for
bothy use and should, in our opinion, be replaced as soon as possible.
The stove is an accident waiting to
happen. We have noted in a recent MBA
quarterly, that a number of other bothies have ‘become unavailable’ and in
all cases it was because these bothies had caught fire and burned down.
Is Culra going to be next??
Because of the extremely high fire
risk that the stove presents to the bothy, the current MO’s have been agitating
over the years for the replacement of the stove. In our view this is now a matter of great urgency. We, the MO’s, cannot be held responsible if
the bothy burns down. We have been
trying to pursue this matter for a number of years – so far without
result. The current MBA’s
non-replacement policy of bothy stoves is simply not tenable in the case of
Culra: the stove in Culra has excessive
fire risks and must be replaced or simply removed altogether in order to alleviate
this fire risk.
A refusal by the MBA to replace the
stove in Culra would make the office of MO of the two current holders
untenable. We simply cannot take
responsibility for the Bothy under the high-risk conditions that obtain at the
moment.
If the bothy stove is to be replaced
there are two possibilities:

Photo 3
- Commercially
available cabin stove suitable for use in Culra Bothy
4. Current un-resolved bothy conditions as of
March, 2013
The MO’s have expressed grave concerns
over the general condition of the bothy in our last few reports. Chief among these are the porches and the
roof. The present porches are wrongly
made to provide good protection from the driving wind and rain which beat against
the building from the prevailing south and west winds on the porch side of the
building. The doors of both porches do
not close of their own accord: they
blow open instead of blowing shut. The
wood of both porches is, as a result, rotten and this is exacerbated by the
fact that the roofs of both porches leak because of the poor workmanship of
previous repairs and installation (see, for example the workmanship of the roof
in Photo 5 below). The
westerly porch is dark, the easterly porch’s floor is collapsing and water
which blows in accumulates on the floor.
Both porches need to be replaced urgently. The framing for the door and the threshold of the easterly porch
has been replaced a few years ago, but it is pointless to carry out any further
repairs to these porches as the doors will always blow open in the future
leading to the same problems again.

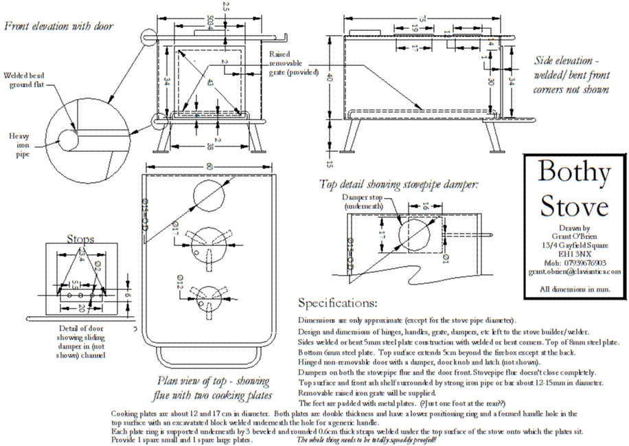
Figure 1
- Drawing of a design
for a new stove for Culra Bothy

Figure 2 – Drawings of the old and new porches for Culra Bothy. The scale is the same in all drawings
The drawings in Figure 2 above show the front view of the bothy (left) and the
side view of the bothy (right) in each case.
The top drawing shows the bothy as it is now with two porches. The next two drawings show possible
configurations for a new single, long porch that is 100 cm wider than the
present porches. It is assumed for
reasons of safety, especially in the dark, that the level of the floor in the
new porch is the same as the level of the floors in the Common Room and the
Small Dormitory. The second drawing
shows a possible porch with the doorway in the middle of the south side of the
new long porch. This doorway would,
however, face into the direction most affected by the weather. The angle of the roof, determined by the
present location of the roof beam and the height of the door on the south side
would have to be rather shallow. If
this possibility is chosen, soil would have to be removed from this side of the
bothy so that the lower portion of the door is not always wetted by the
prevailing weather. The third drawing
shows a possible porch with the door at the side of the bothy facing the
track. In this location it would be
sheltered from the prevailing weather.
The soil already drops away from the building on this side and placing
the door here would possibly require a step up to enter the porch. If the door is hinged on the left and opens
outwards as is required by health and safety, then the door would naturally
blow shut in the prevailing winds. The
door could also be made longer than shown in the drawing to prevent water entry
into the porch from a low level.
The arrangement shown in the third
drawing is much preferred by the MO’s for Culra Bothy.
The drawing shown below in Figure 3 shows a plan view of the bothy with the new porch
drawn in blue lines. This is on the
south side of the Bothy facing Ben Alder.
The present porches are only about 120 cm wide, and the additional width
of 100 cm is shown in blue. The windows
in the porch are roughly opposite the doorways to each of the rooms at this end
of the building. For health and safety
reasons, these two doors should be re-hung and be made to open outwards from
the dormitory areas into the porch.

Figure 3 – A drawing of the front part of the Bothy showing the MO’s
suggestion for a new porch.
The replacement of the porches is
closely tied to the bad condition of the roof resulting from the poor
workmanship when the present roofing material
was installed. A sheet of
roofing was torn off in the gales of 2012-2103, but this has been successfully
repaired by the Estate and was reported by us in a previous report. However, the matter is becoming rapidly
worse. Our recent trip to the bothy in
March showed that the west side valley gutter is now leaking and water entry
into the attic and roof space is causing damage to the roof beams and the
ceiling above the large Common Room.
Indeed we have already had to repair a leak in the valley gutter on the
other side of the building. This damage
can be seen clearly in Photo 4 and its cause can be seen in Photo 5 below.

Photo 4 – Mould growth on the sloping ceiling of the west side of the
Common Room. The arrow marks the point
where the valley gutter crosses above this part of the ceiling causing the dark
mould growth visible to the right.
Photo 5 below shows the valley gutter facing north-west where
the source of the problem is clearly evident.

Photo 5 – The valley gutter on the west side of the Bothy showing the generally
bad state of the roof and the poor workmanship of the installation of the
roofing.
The roofs of both porches also
continue to leak as reported by us above and in a number of previous
reports. This, along with water entry
through the doors when they are accidentally left open, continues to cause
problems. The time is rapidly
approaching when the floor timbers in the porches are going to collapse under
the weight of a bothy user or, indeed, the walls of one of the porches is going
to collapse. The state of the porches
is becoming critical and is in need of urgent attention.
The Bothy urgently needs re-painting
and waterproofing with Cuprinol. But we
are loath to organise a work party to do this until the new porches are built
and the building is re-roofed. We are
now in a state of limbo not knowing whether there will be Estate help (with or
without contributions from the MBA) for roof replacement (which really is irreparable)
and replacement of the porches.
We, as MO’s, are not capable of doing
the work (the inexpert nature of the last roof repairs/replacement must surely
have some bearing on the roof being in need of repair so soon after its
complete replacement). The rebuilding
of the porches would provide shelter for the most vulnerable aspect of the
bothy and improve its usability and comfort as well as providing much needed
space.
Summary:
If the
above are accomplished the MO’s are qualified and agree to carry out the
following with or without help:
If the
above improvements/repairs are carried out the following points should be
noted:

Figure 4
– Harling on the chimney in the attic space.
A vain attempt to prevent smoke from the chimney leaking into the attic
space.
Grant
O’Brien and Johnny Bell, Culra Bothy MO’s
13/4 Gayfield
Square
EDINBURGH EH1 3NX
Telephone
0131 556 8705
Mobile J: 07506804800; G: 07939676903
e-mail: johnny.bell@claviantica.com
March
17, 2013